260.437.4866         

Shadow Creek Lots
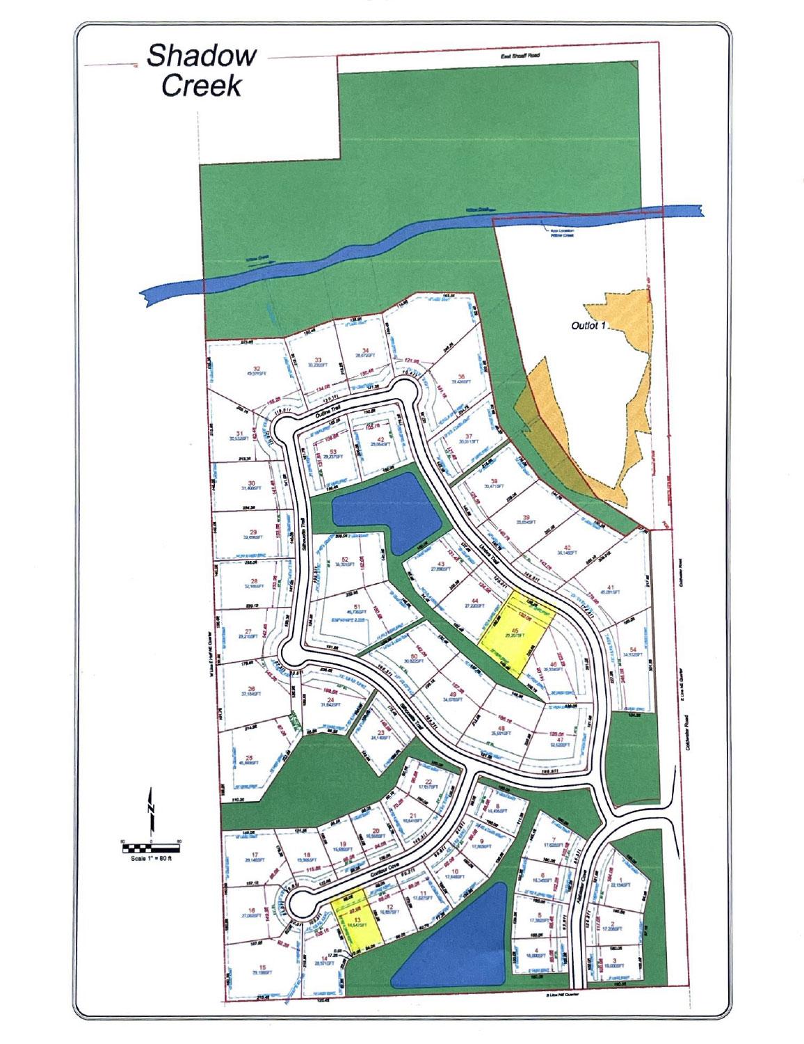
Shadow Creek Lots 11, 13, 21, 22, 45, Fort Wayne, IN, USA
Shadow Creek
  • Shadow Creek Lots - Image# 1
Lots for Sale
1
Specification
School district:
Northwest Allen Co.
Description
Updated on: Jan 17, 2025

• Lot 11: $169,900

• Lot 13: $169,900

• Lot 21: $169,900

• Lot 22: $149,900

• Lot 45: $199,900